V Brežicah raste novo trgovsko središče: Investicija vredna 22 milijonov evrov
V Brežicah raste novo trgovsko središče: Investicija vredna 22 milijonov evrov
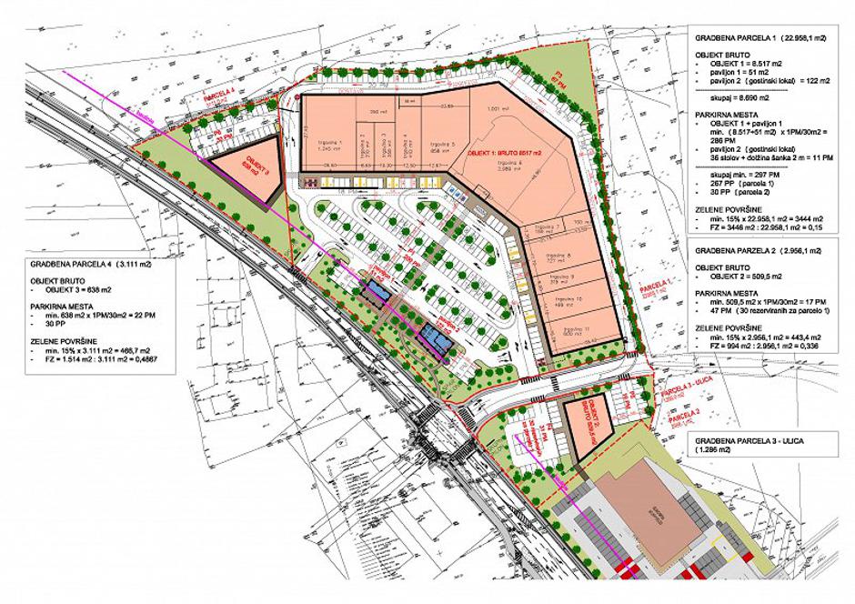
Na območju pri avtobusni postaji v Brežicah načrtujejo nov trgovski center, podobnega po vzoru krškega centra na vstopu v mesto pri krožišču pred Žadovinkom.
Na vzhodnem delu Brežic, ob Cesti svobode, poteka gradnja novega trgovskega središča, ki bo zajemalo približno 28.100 kvadratnih metrov. Investitor, ljubljanska družba MA Rho, ki jo vodi Andreas Messner iz Celovca, je ocenil vrednost naložbe na približno 22 milijonov evrov. Trgovski center bo zgrajen do konca leta 2026 in bo ponujal okoli 9.700 kvadratnih metrov najemnih površin. V središču bo 17 slovenskih in mednarodnih najemnikov, med katerimi bo tudi Spar Slovenija. Poleg trgovin s prehrano, obutvijo, tekstilom, drogerijo in izdelki za male živali, bo v kompleksu tudi gostinski lokal s pokrito teraso. Zasnova prostora vključuje javno zunanjo ploščad ob Cesti svobode, ki bo obogatena z drevesi in zelenjem, kar bo omogočilo prijetno okolje za obiskovalce.
Ob Atletskem stadionu in pumptrack stezi bodo potekala gradbena dela
Občina Brežice je postavila jasne pogoje glede zunanje ureditve, saj je vztrajala, da se del prostora nameni javnim in zelenim površinam, namesto parkirišč. V načrtu so tudi kolesarske steze, dostopne ceste in komunalna infrastruktura, ki jo bodo po zaključku prevzeli občinski organi. Gradnja, ki vključuje dva paviljona in večji trgovski objekt, bo pomembno prispevala k izboljšanju mestnega središča in povečanju gospodarske aktivnosti v Brežicah.

Vir: Dolenjski List, Zurnal 24




